大力液压 • 液压机械专业生产企业
Professional manufacturer of hydraulic machinery
0510-83743799
网站首页
关于我们
产品中心
产品展示
More
精密导轨自动校直机
龙门移动钢板矫直机
龙门翻板液压机
龙门液压机
四柱液压机
视频中心
案例展示
荣誉资质
新闻中心
在线留言
联系我们
热门关键词:
您的位置:
首 页
>>
产品中心
>>
框架液压机
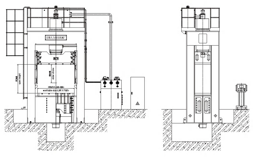
YD34系列框架式多用途通用液压机
集设计、开发、生产、销售为一体的液压机械专业生产企业,主要产品有单柱液压机、液压校直机、四柱液压机、电机专用压桩机、钢板校平液压机、多功能折边机、汽车桥校正液压机、整形液压机、压力传感液压机、非标液压机等。
全国热线:
0510-83743799
产品·介绍
Product parameter
上一篇:
框架液压机
下一篇:
上梁移动下顶式液压机
产品中心
单柱液压机
四柱液压机
框架液压机
电机行业专用液压机
油压机
其他
切边机
矫直机
电动缸压装机
拉伸挤压机
龙门液压机
视频中心
推荐产品
龙门翻板液压机
龙门液压机
龙门液压机
YDK框架式液压机
精密导轨自动校直机
全国服务热线
0510-83743799
QQ咨询
扫描访问手机站
400-0843-799